
Máng xối cấu trúc thép là một thành phần quan trọng của hệ thống thoát nước trên mái nhà của tòa nhà. Chức năng chính của chúng là thu thập nước mưa từ mái nhà, hướng nó vào các đường ống thẳng đứng, và sau đó xả nó vào hệ thống thoát nước ngoài trời, ngăn không cho nó làm xói mòn trực tiếp các bức tường hoặc ngâm. Thiết kế và lắp đặt sản phẩm của Liweiyuan được đặc trưng bởi cường độ cao và trọng lượng nhẹ, đảm bảo thoát nước mịn và độ bền đặc biệt.
Máng xối cấu trúc thép là một thành phần quan trọng của hệ thống thoát nước trên mái nhà của tòa nhà. Chức năng chính của chúng là thu thập nước mưa từ mái nhà, hướng nó vào các đường ống thẳng đứng, và sau đó xả nó vào hệ thống thoát nước ngoài trời, ngăn không cho nó làm xói mòn trực tiếp các bức tường hoặc ngâm. Thiết kế và lắp đặt sản phẩm của Liweiyuan được đặc trưng bởi cường độ cao và trọng lượng nhẹ, đảm bảo thoát nước mịn và độ bền đặc biệt.
Máng xối cấu trúc thép của Liweiyuan được làm bằng các vật liệu chống ăn mòn và kháng tác động.
Sản phẩm của chúng tôi là mạ kẽm nóng, cung cấp khả năng chống ăn mòn tuyệt vời, chi phí thấp và tuổi thọ dài. Có sẵn độ dày 1,5-2,5 mm, nó phù hợp cho hầu hết các ứng dụng.
Được làm bằng thép không gỉ, sản phẩm này cung cấp khả năng chống ăn mòn và đặc biệt phù hợp cho môi trường ven biển hoặc ẩm ướt. Có sẵn độ dày 1,0-2,0 mm, nó cung cấp giá cao hơn nhưng tuổi thọ dài.
Các sản phẩm thép phủ màu của chúng tôi dựa trên thép mạ kẽm, phủ lớp phủ chống thời tiết, như polyester hoặc fluorocarbon, cho cả khả năng chống ăn mòn và hiệu ứng trang trí. Có sẵn độ dày 1,2-2,0 mm, chúng phù hợp cho các tòa nhà đòi hỏi mức độ hấp dẫn thẩm mỹ cao.
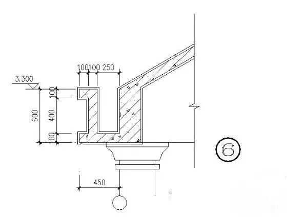
Hình thức cấu trúc của máng xối cấu trúc thép cần được điều chỉnh theo độ dốc mái và thiết kế mái hiên. Các loại phổ biến bao gồm hình chữ U và hình chữ V. Quá trình cài đặt như sau:
Máng xối cấu trúc thép của chúng tôi sử dụng giá đỡ gutter bằng thép góc để bảo đảm chúng vào các chùm hoặc purlin của cấu trúc thép. Khoảng cách khung là 600-1000mm để đảm bảo phân phối ứng suất trên máng xối.
Các máng xối đã hoàn thành được kích thước trước và được kết nối tại chỗ bằng cách sử dụng các đầu nối hoặc hàn. Chất bịt kín được yêu cầu tại ngã ba giữa máng xối và sàn mái.
Chúng ta có thể cài đặt một nhấp nháy phía trên sàn mái. Đầu dưới của máng xối nên được đặt bên dưới sàn mái và niêm phong bằng chất bịt kín. Các lỗ thoát nước nên được cung cấp ở dưới cùng của máng xối, chủ yếu để kết nối với các riser nước mưa.
Quá trình sản xuất cấu trúc thép của chúng tôi bao gồm cắt theo kích thước bản vẽ, uốn cong, sơn, kiểm tra sản phẩm hoàn chỉnh, đóng gói và vận chuyển. Các máng xối cấu trúc thép của Liweiyuan được thiết kế và lắp đặt để đảm bảo khả năng chống ăn mòn, thoát nước mịn và độ bền, đảm bảo thoát nước hiệu quả.