
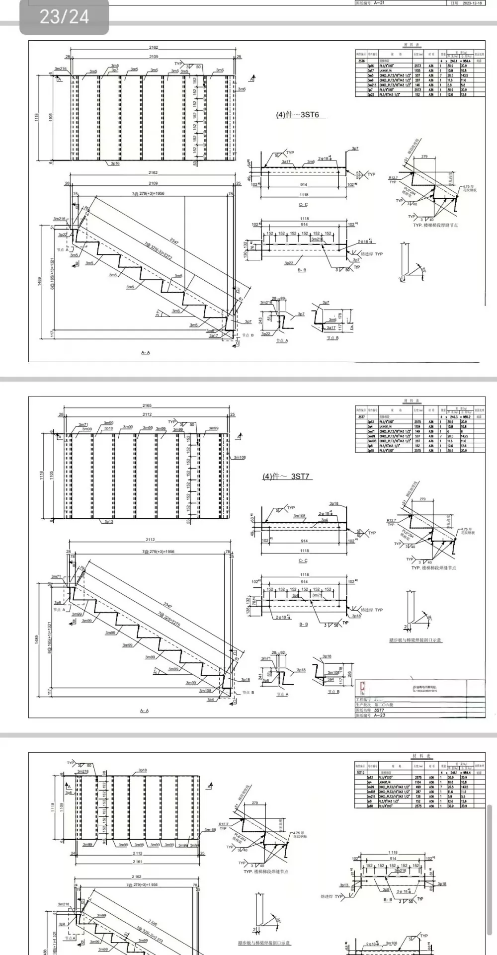
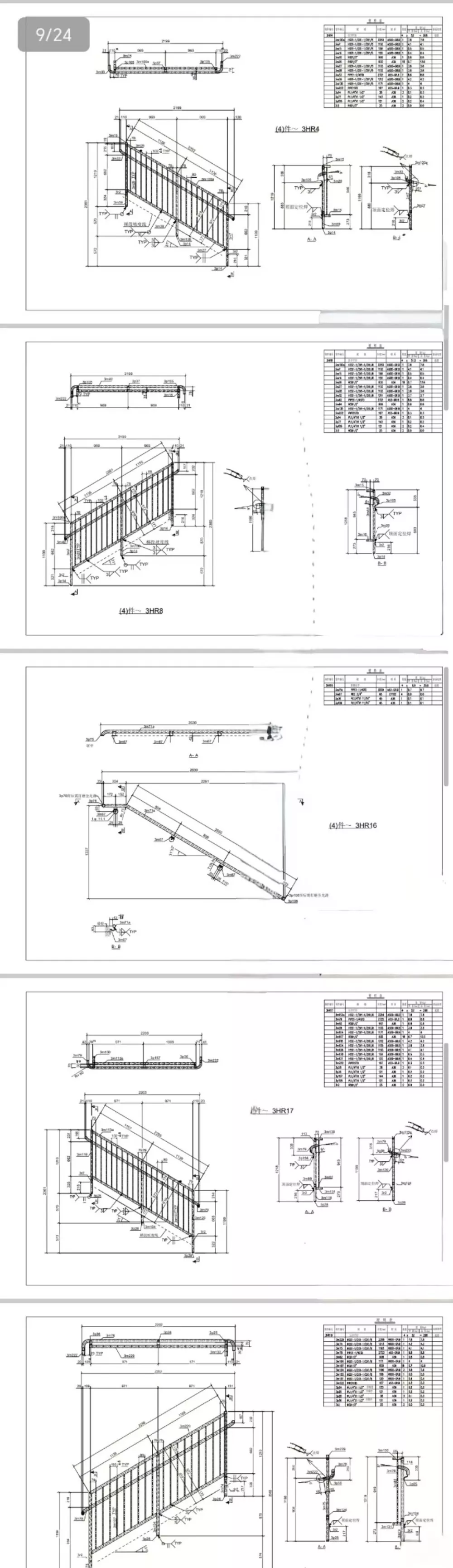
Cầu thang kết cấu thép của Liweiyuan chủ yếu được làm từ thép kênh và thép tấm, sử dụng kỹ thuật cắt và hàn. Sản phẩm của chúng tôi có điểm hỗ trợ tối thiểu và khả năng chịu tải cao. Chúng tôi cung cấp nhiều kiểu cầu thang khác nhau và cũng có thể tùy chỉnh chúng theo nhu cầu của bạn. Hãy thoải mái mua sắm!
Cầu thang kết cấu thép của Liweiyuan chủ yếu được làm từ thép kênh và thép tấm, sử dụng kỹ thuật cắt và hàn. Sản phẩm của chúng tôi có điểm hỗ trợ tối thiểu và khả năng chịu tải cao. Chúng tôi cung cấp nhiều kiểu cầu thang khác nhau và cũng có thể tùy chỉnh chúng theo nhu cầu của bạn. Hãy thoải mái mua sắm!



Cầu thang kết cấu thép của Liweiyuan chủ yếu được sử dụng trong các tòa nhà cao tầng, nhà máy công nghiệp và các lĩnh vực khác. Sản phẩm của chúng tôi được làm từ nguyên liệu chất lượng cao, mỗi quy trình đều được vận hành nghiêm ngặt và mỗi sản phẩm sẽ được kiểm tra chất lượng trước khi giao cho bạn.
1. Sản phẩm của chúng tôi chiếm tương đối ít không gian và có thể được thiết kế để phù hợp với không gian của bạn, giúp dễ dàng lắp đặt.
2. Tiết kiệm và tiết kiệm chi phí. So với cầu thang bê tông, cầu thang của chúng tôi lắp đặt và xây dựng nhanh hơn, dễ dàng hơn, yêu cầu ít ván khuôn hơn và chi phí chỉ bằng một nửa.
3. Chúng tôi cung cấp nhiều kiểu dáng khác nhau để phù hợp với môi trường và phong cách mong muốn của bạn.
4. Chúng tôi rất thực tế. Các bậc thang kết cấu thép có thể được làm bằng các vật liệu như tấm thép có hoa văn và lưới thép, đồng thời có thể được tùy chỉnh để phù hợp với các mô hình giao thông khác nhau, giúp việc lên xuống cầu thang dễ dàng hơn.

5. Cầu thang của chúng tôi có thể tùy chỉnh, bao gồm các phương pháp xử lý chống ăn mòn như mạ kẽm nhúng nóng, phun nhựa và sơn. Chúng cũng có thể được tùy chỉnh để đáp ứng nhu cầu cá nhân của khách hàng. Chúng tôi cung cấp nhiều loại vật liệu, bao gồm A36, Q235B và Q355B.


Liweiyuan là một nhà máy gia công kim loại chuyên nghiệp tại Trung Quốc, được trang bị thiết bị gia công kim loại tiên tiến, đội ngũ kỹ thuật có trình độ cao và kỹ thuật viên chuyên nghiệp. Thêm điểm nhấn độc đáo cho tòa nhà của bạn bằng cách chọn cầu thang thép Liweiyuan!